
Commercial & Mixed-Use Development Services
Civil engineering and complete site development for retail centers, mixed-use projects, office parks, and industrial sites — designed to move through approvals and into construction.
Commercial Projects We've Delivered
Commercial sites come with tighter timelines, stricter code requirements, and more coordination between trades. We design around those realities, so the civil work doesn't become the bottleneck.
From retail plazas and mixed-use developments to office parks and industrial sites, these examples highlight the commercial projects we’ve designed and supported from concept through construction.
Real Projects. Real Results.
What We Deliver for Commercial Projects
Civil engineering and site development services tailored for retail, office, industrial, and mixed-use projects.
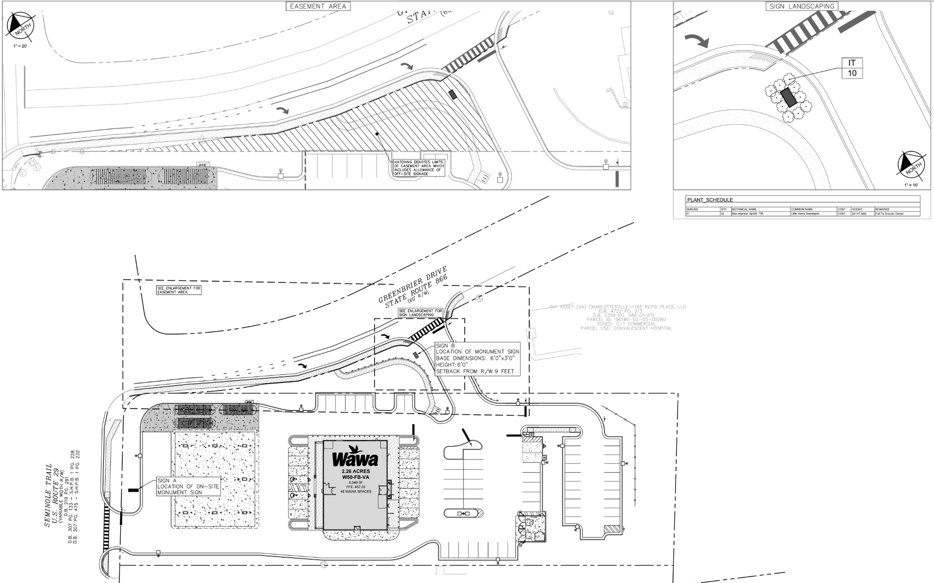
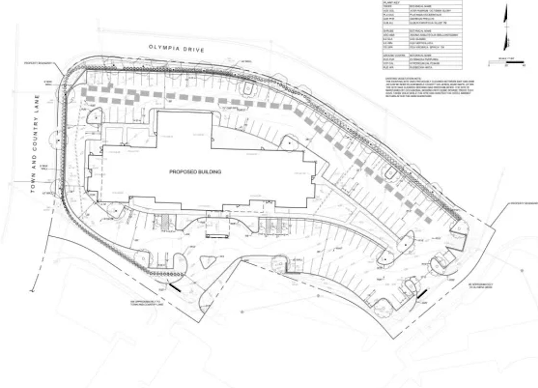
Retail Centers & Commercial Plazas
Site layout, grading, parking, utilities, and stormwater design for retail developments — from standalone buildings to multi-tenant plazas.
Mixed-Use Developments
Integrated site engineering for projects combining residential, retail, and office space — coordinating access, parking, utilities, and phasing under one plan.
Office & Business Parks
Civil design for office complexes and business parks including site grading, access roads, shared utilities, and stormwater infrastructure.
Industrial Sites
Site development for warehouses, distribution centers, and light industrial facilities — engineered for heavy loads, truck access, and efficient utility service.
Complete Site Development Packages
Full-scope civil engineering from feasibility through construction-ready plans — grading, utilities, drainage, permitting, and agency coordination bundled into one deliverable.
Construction-Ready Plan Sets
Clear, buildable drawings that contractors can use—designed to minimize field questions and change orders.
Commercial & Institutional Design Services
Commercial and institutional projects demand tighter coordination, stricter code compliance, and plans that hold up through multiple rounds of agency review. Our design services are built to support that process from day one.
Site Planning & Parking Layout
Building placement, circulation, parking counts, drive aisle widths, and fire lane access — designed to maximize the site while meeting code.
ADA Accessible Routes & Grading
Accessible path design from parking to building entries — including slopes, landings, ramp grades, and detectable warnings — compliant with ADA and local accessibility standards.
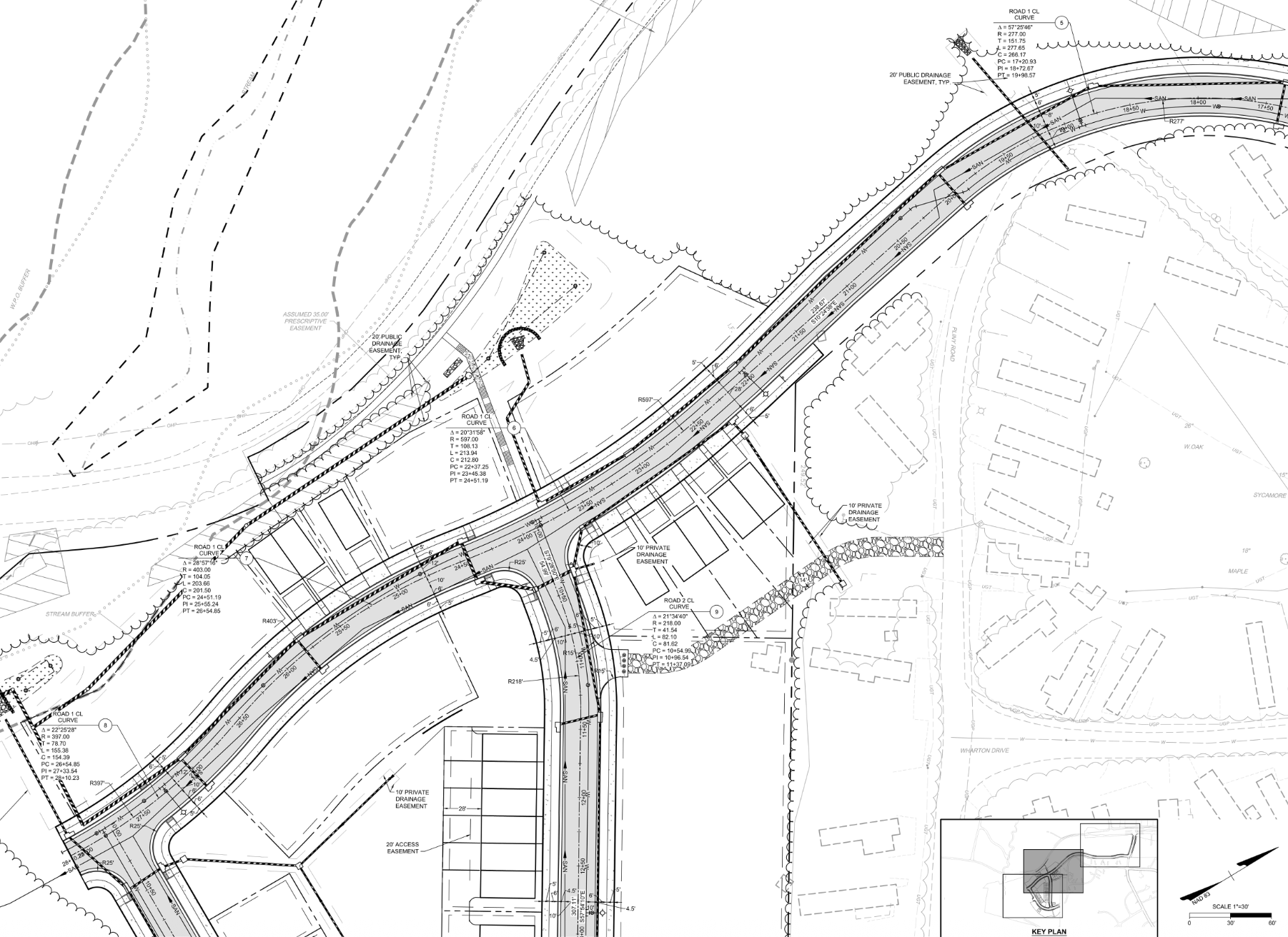
Utility Infrastructure Design
Water, sewer, storm, and fire line design coordinated with the full site plan — including sizing, routing, and connection to municipal systems.
Permitting & Agency Coordination
Submittal-ready plan sets prepared for city, county, state, and utility provider review — plus direct coordination and comment responses to keep approvals moving.
Construction Plan Preparation
Complete construction document packages — grading, utilities, erosion control, details, and specifications — ready for bidding, permitting, and contractor use.
Stormwater & Drainage Systems
Detention, retention, storm sewer, and BMP design — engineered to meet municipal and state stormwater requirements and integrated with site grading.
Commercial & Mixed-Use Development Services
Winters Services supports commercial and mixed-use developments with practical civil engineering and site design that helps projects move efficiently from concept to construction. We work with developers, property owners, architects, and contractors to create buildable plans that meet regulatory requirements while supporting the long-term functionality of the property.
From site layout and grading design to stormwater management, utility planning, and permitting coordination, our team focuses on delivering clear, well-organized plans that help reduce delays and keep construction on schedule. Each design is developed with both engineering standards and real-world construction considerations in mind.
Whether you're developing a retail center, office complex, restaurant site, or a mixed-use property combining commercial and residential spaces, Winters Services provides the technical expertise and planning support needed to turn ideas into successful, well-built developments.
Free No Obligation Estimate
Send us what you are working on and we will get you a quote quickly and efficiently!
Commercial Site Development, Done Right
Commercial projects move fast—and delays cost time and money. We prioritize clear communication, quick turnaround on revisions, and plans designed to pass review the first time—not just look good on paper. Our team understands permitting requirements and designs with approval and construction in mind.
Commercial & Mixed-Use Development FAQ
What types of commercial projects do you handle?
Retail centers, commercial plazas, mixed-use developments, office parks, business parks, industrial sites, and complete site development packages.
Do you handle the full site development or just specific pieces?
Both. We can deliver a complete site development package or support specific scopes like grading, utilities, or stormwater — depending on what your project needs.
Can you coordinate with our architect and contractor?
Yes. We regularly coordinate with architectural, MEP, and construction teams to keep the civil scope aligned with the overall project.
What do you need from us to get started?
A site address, intended use, and any existing documents — survey, plat, concept plan, or environmental report. If you don't have those yet, we'll tell you what to get first.
Can you support phased commercial developments?
Yes. We design for phased construction so infrastructure, grading, and utilities support both current and future phases.






